Description
Welcome to a unique development opportunity in Southeast London that promises significant profit potential.
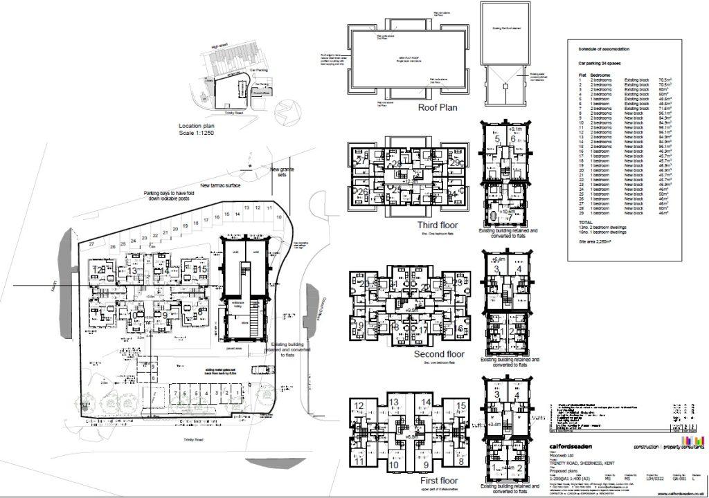
Introducing The Water Tower, located on Trinity Road, Sheerness, Kent, ME12 2PF. This property, currently in a derelict state, was once a water tower and pumping station. It’s situated on a large plot and is up for auction with a guide price of £500,000 to £600,000. The vendor is eager to sell before the auction.
The property received planning approval on September 20, 2017. Although the initial 5-year period has ended, the local authority has confirmed in writing that the planning consent will be renewed upon application. This will allow for the intended historic conversion of the Water Tower.
This iconic building supplied water to Sheerness until 1960. In 2005, planning was granted for the creation of 29 flats and maisonettes within the retained buildings and an adjacent new build block. The development was delayed due to the new owners taking longer than expected to secure the development funding.
The plans include 29 flats and maisonettes, seven of which would be spread over three floors, and 27 allocated parking spaces.
The site is conveniently located on the western side of the A250 Trinity Road, within walking distance of the town centre’s shops and amenities. Schools are within a mile, and Sheppey College is just 1200 yards away. Sheerness-on-sea rail station provides transport links to central London in 80 minutes.
Sheerness is a port town located on the mouth of the River Medway on the north-west corner of the Isle of Sheppey in north Kent. With a population of 11,938, it is the second-largest town on the island. The town offers a variety of shops, restaurants, cafes, and pubs. It also has a beautiful beach and recreational facilities such as parks, sports clubs, and leisure centres.
The buyer’s premium applies when the hammer falls. The buyer will pay a 10% deposit and a buyer’s premium of 2% of the sale price + VAT upon contract exchange. To register to bid, we require 2 forms of ID (Passport, Driving Licence) in line with the Anti Money Laundering Act.
For more information, visit the following links:
- OnTheMarket Listing
- Swale Planning and Building Control
- Rightmove House Prices in Sheerness
- Visit Swale








